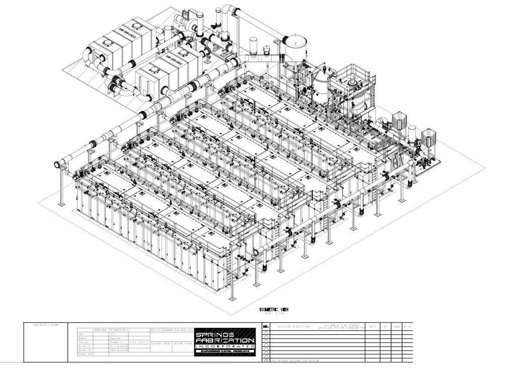
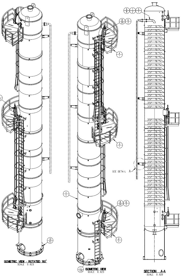
Design for Manufacturing (DFM) is a core strength of Springs Fabrication. As a result you will save time and money when entrusting us with your project. Our skilled Engineering team has helped our customers with clean-sheet design, or advancing an existing design for ease of manufacturing, increased value and shorter manufacturing times. Our design service is available for projects from simple processed parts to complex equipment and turnkey systems.
Springs Fabrication is well-known, and sought after, for our ability to reduce cost by optimizing designs for ease of manufacturing. In addition, we utilize 3D design software to model, perform finite element analysis (FEA) and generate detailed manufacturing drawings to insure accurate and complete designs. The 3D design tool allows for most, if not all, manufacturing issues to be discovered and solved at the engineering stage instead of during manufacturing when costs and schedule are impacted the most.